Одно пространство — несколько разноформатных зон
При работе с планировкой мы предложили два варианта на выбор, для каждого учли три сценария использования. Чтобы можно было в деталях рассмотреть, как удастся трансформировать каждую зону в офисе.

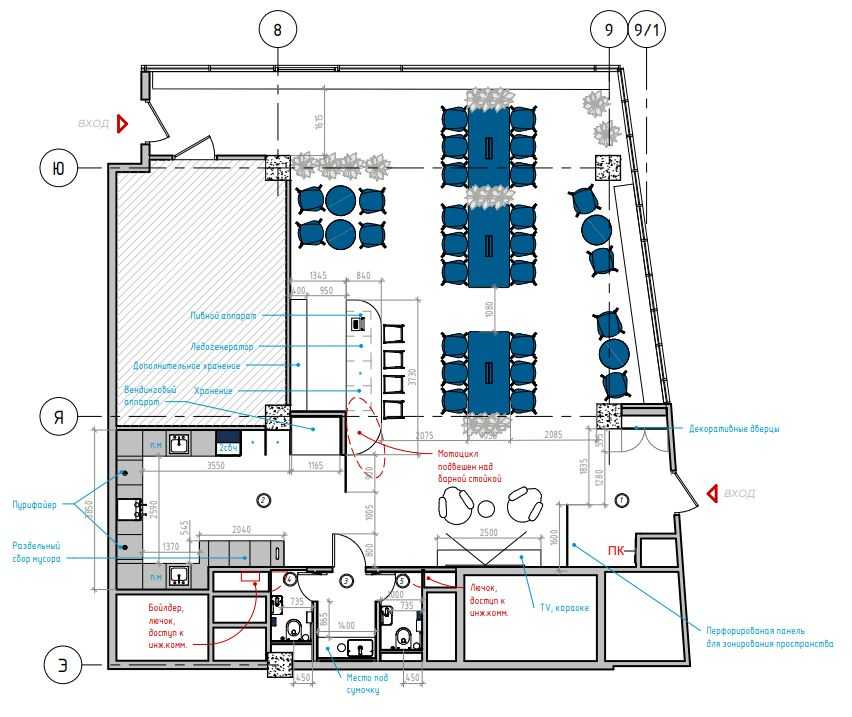
Первый вариант

Второй вариант
Различия в обеих планировках небольшие, но всё же влияют на общее ощущение в этой зоне офиса. На первой вендинговый аппарат расположен в видовой зоне, зона ТВ не отцентрирована, на второй — аппарат находится в кухне, ТВ-зона располагается по центральной оси и таким образом обеспечивается лучший обзор.
В итоге Avito остановились на втором решении. Минус первого варианта в том, что бар удален от коммуникаций и нет возможности разместить раковину.
Далее мы решили доработать понравившийся вариант. Предложили увеличить длину барной стойки, чтобы добавить больше посадочных мест.
Заменили длинный стол с креслами на круглый диван — получили мини-переговорную, которую можно закрыть плотными шторами.

Вот, что в результате получилось

Когда согласовали основные моменты, перешли к оформлению пространства.
Иконки

Сравнение итераций иконок всех десяти рассматриваемых приложений бок о бок показывает уникальный путь развития, который каждый для себя выбрал. В течение последнего десятилетия некоторые иконки оставались довольно последовательными, но лишь с незначительными улучшениями, а другие перерабатывались каждые несколько лет. Если выстроить их в хронологическом порядке, отраслевые тенденции дизайна становятся очевидными.
При запуске App Store глянцевые иконки правили бал. Глянцевость иконок применялась по умолчанию, и разработчикам пришлось специально отключить эффект в Xcode, чтобы удалить его. По мере того как приложения iOS созрели, большинство в конечном итоге потеряло свой блеск и приняло очень детализированные индивидуальные дизайны.
iOS 7 изменил понятие хорошей иконки. Высокотекстурные и 3D-рендеринговые активы обычно выглядели неуместными рядом с новым набором иконок от Apple, а некоторые противоречили обновленным радиусам закругления. По мере того, как дизайнеры и разработчики постепенно устанавливали новые рекомендации и практики по дизайну иконок, детализированные и более сдержанные цветовые палитры вернулись во многие иконки.
Разница между Flat и Material Design
Плоское изображение пришло на смену реалистичным объемным объектам (скевоморфизму). Это был своеобразный ответ на огромное количество копий настоящих предметов, заполонивших весь интерфейс девайсов. Не успели юзеры привыкнуть к тому, что у них было, как дизайнеры быстренько убрали из программных инструментов весь объем и эффект присутствия, сделав его плоским.
Узнай, какие ИТ — профессии входят в ТОП-30 с доходом от 210 000 ₽/мес
Павел Симонов
Исполнительный директор Geekbrains
Команда GeekBrains совместно с международными специалистами по развитию карьеры
подготовили материалы, которые помогут вам начать путь к профессии мечты.
Подборка содержит только самые востребованные и высокооплачиваемые специальности и направления в
IT-сфере. 86% наших учеников с помощью данных материалов определились с карьерной целью на ближайшее
будущее!
Скачивайте и используйте уже сегодня:
Павел Симонов
Исполнительный директор Geekbrains
Топ-30 самых востребованных и высокооплачиваемых профессий 2023
Поможет разобраться в актуальной ситуации на рынке труда
Подборка 50+ бесплатных нейросетей для упрощения работы и увеличения заработка
Только проверенные нейросети с доступом из России и свободным использованием
ТОП-100 площадок для поиска работы от GeekBrains
Список проверенных ресурсов реальных вакансий с доходом от 210 000 ₽
Получить подборку бесплатно
pdf 3,7mb
doc 1,7mb
Уже скачали 25519
Вот так появился материальный дизайн. Был сделан шаг назад, а по факту получилось движение вперед. Этот вид дизайна сравнивают с плоской бумагой, которая выглядит как настоящая и нереальная одновременно.
История изменений графики в World of Warcraft за 16 лет
Крупные изменения внешности персонажей
С момента запуска World of Warcraft в 2004 году, внешний вид персонажей постоянно улучшался и изменялся. Более крупные изменения внешности были внесены в дополнениях к игре, таких как The Burning Crusade, Wrath of the Lich King, Cataclysm, итд.
Первое крупное изменение внешности персонажей было внесено в дополнении The Burning Crusade, когда в игру были добавлены две новые расы: орки и эльфы крови. Были улучшены текстуры персонажей, добавлены новые варианты причесок и более подробная настройка цвета кожи.
В дополнении Wrath of the Lich King в игру были добавлены обновленные модели персонажей. Каждый персонаж стал иметь более детализированный внешний вид, что на тот момент было настоящим прорывом в мире онлайн-игр.
В дополнении Cataclysm было добавлено несколько новых рас и классов, а также новые рейды и подземелья. Вместе с этим были улучшены текстуры персонажей, отдельные детали в одежде, шлемах, оружии и т.д.
С введением Legion и последующих дополнений, в игру были добавлены новые эффекты и анимации для персонажей, а также больше возможностей для настройки внешнего вида и персонализации.
Сегодня игроки могут настроить своих персонажей почти по любому желанию: от выбора цвета глаз до выбора оттенка кожи и цвета волос.
Первые шаги
World of Warcraft запущена в 2004 году, её графика была передовой для своего времени. Разработчики Blizzard реализовали мир Азерота в трехмерном пространстве, передавая ландшафт, архитектуру, персонажей и объекты с качеством, недоступным для многих других онлайн-игр.
Изначально игровой мир содержал крупные зоны открытого мира, включающие леса, горы, пустыни, джунгли и холмы, которые соединялись мелкими проходами и дорожками. Зоны были украшены оживленными деревнями, небольшими городками и крепостями, а также другими декорациями, создавая максимально реалистичный игровой мир.
Первоначальная графика World of Warcraft была адаптирована к высоким и спокойным настройкам, способным обеспечить безупречную работу игры. Но с течением времени, производители компьютерной техники выпускали более мощные и продвинутые устройства. Разработчики вынуждены были адаптировать графику игры к новым технологиям, чтобы позволить пользователям полностью наслаждаться спокойной, красивой и богатой игровой графикой.
2019+ или продолжение следует

Почти 20-летняя история взлетов и падений дизайнерской мысли позволяет нам не только оценивать прошлое и анализировать современные тенденции, но и прогнозировать будущее в развитии языков виртуального вижуала. Прекрасное далеко (и не очень) видится таковым:
- Ломаные сетки для воплощения скопившегося креатива и оригинальности.
- Иллюстрации на главной сцене. Прощание с фото, новое приветствие с гифками.
- Более органичные и обтекаемые формы и кнопки.
- Контрастные, вибрирующие по своей сочетаемости цвета.
- Более объемные интеракции и анимации.
- Оригинальные, часто автоматические переходы между страницами. Паралакс может уже и не самый топ, но точно актуален. Мода ведь циклична.
- Минимализм, ставка на правильные шрифтовые сочетания, максимум свободного пространства на сайте.
- Большие, читабельные, упитанные шрифты с засечками. Это их время! А еще на пик выйдут меняющиеся анимированные шрифтовые пары.
- Плавающее меню и никакой статики, никакого закрепления.
- Правильно интегрированные видео. Это значит так, что пользователю сразу и не понятно, откуда в этом месте возникло видео.
- Более массивные, насыщенные контентом и вижуалом формы.
- UX-контент, который в заглавиях, блоках, формах кнопках сливается с созданным пользовательским сценарием.
Новые технологии и увеличение детализации
World of Warcraft с каждым годом становился все более реалистичным и детализированным. Одной из причин этого стала внедрение новых технологий в игровой процесс. Например, в 2007 году Blizzard ввела технологию DirectX 9, которая позволила улучшить освещение, добавить тени и более реалистичную воду.
Более поздние обновления также привнесли новые технологии в игру. В 2010 году была внедрена поддержка DirectX 11, что позволило улучшить графику еще больше и добавить такие элементы, как реалистичный дым и пыль, а также эффекты влажности и обезвоживания.
Увеличение детализации также стало одним из приоритетов для Blizzard. С каждым обновлением игра становилась все более совершенной в визуальном отношении. Новые модели персонажей, более высокое разрешение, более качественные текстуры и отражения — все это позволило создать более реалистичный мир Warcraft и сделать игровой процесс еще более захватывающим и увлекательным.
С помощью новых технологий и увеличения детализации Blizzard продолжает совершенствовать World of Warcraft, делая его все более реалистичным и красивым. Это не только улучшает визуальную составляющую игры, но и создает более полное и захватывающее игровое пространство для игроков.
❤️🔥 Главные изменения ❤️🔥
Новый дизайн профиля
Новый дизайн профиля более современный и стильный. Он использует яркие цвета и простые формы, что делает его более привлекательным для глаз. Кроме того, новый дизайн позволяет магазинам Авито более эффективно использовать пространство профиля, размещая более важную информацию на видном месте.

Возможность добавлять логотип, фотографии и видео
Добавление логотипа, фотографий и видео стало неотъемлемой частью стратегии продвижения на Авито. Теперь продавцам Авито стало проще и эффективнее рассказать о своей компании и ее предложениях. Логотип помогает покупателям быстро идентифицировать компанию, а фотографии и видео позволяют привлечь целевой трафик на Авито и показать, что компания предлагает, а также создать более положительное впечатление о компании.
Баннеры: новый способ рассказать о себе на Авито
Раньше на страницах магазинов Авито можно было добавлять фоновую картинку. Многие продавцы использовали этот способ, чтобы рассказать о себе и своем ассортименте. Однако опрос пользователей Авито показал, что такие вставки воспринимаются покупателями как реклама на Авито.Чтобы улучшить пользовательский опыт и дать продавцам больше возможностей, Авито запустил баннеры для полноценного оформления профиля на Авито. В отличие от фона, баннеры хорошо смотрятся в мобильной версии
С их помощью можно привлечь внимание к акциям или отдельным преимуществам компании
Блок «Спецпредложения» стал еще привлекательнее
Блок «Спецпредложения» на Авито был обновлен. Теперь объявления в нем лучше вписываются в дизайн страницы, а продавцы могут выбрать подходящее название для блока: «Лучшие предложения», «Новинки» или «Популярное». Кроме того, в блоке можно добавить от 3 до 15 предложений. Авито становится полноценной площадкой для развития крупного бизнеса на Авито.Изменения в блоке «Спецпредложения» призваны сделать его более привлекательным и информативным для покупателей. Теперь объявления в блоке более заметны и выделяются на фоне других объявлений.

Авито становится полноценной площадкой для продажи товаров и развития бизнеса
Авито, один из крупнейших онлайн-сервисов объявлений в России, продолжает развиваться и улучшать свои возможности. На Авито можно найти объявления о продаже товаров самых разных категорий, от одежды и обуви до электроники и бытовой техники. Оптовая продажа на Авито. На Авито можно найти объявления о предоставлении самых разных услуг, от ремонта и строительства до уборки и ухода за животными. Это отличный вариант для тех, кто хочет открыть свою компанию или оказывать услуги самостоятельно. Авито — это крупнейший онлайн-рынок недвижимости в России. Здесь можно найти объявления о продаже и аренде квартир, домов, земельных участков и других объектов недвижимости.

В отличие от скромных изменений iTunes Remote, приложение Facebook в течение прошедшего десятилетия постоянно обновлялось с увеличивающейся частотой. Всесторонней визуальной истории приложения хватило бы на небольшую книгу, поэтому я решил выделить восемь наиболее значительных изменений.
Приключения Facebook на iPhone в действительности начались до того, как появился App Store. Первоначально сервис был доступен в качестве одного из первых веб-приложений iPhone в октябре 2007 года. Версия 1.0 в App Store едва ли похожа на сегодняшний Facebook, разве что фирменной синей панелью навигации. Даже на иконке отсутствовала белая буква «f». Новостная лента приложения была по существу украшенным табличным представлением над панелью вкладок с пятью иконками: «Главная», «Профиль», «Друзья», «Чат» и «Входящие». Версия 2.0 была построена на той же концепции, с добавлением еще двух слоев навигации под основной строкой заголовков.
Facebook 3.0 был впервые показан в июле 2009 года и представил 3×3 сетку значков, которые помогли решить всплывающую навигацию приложения. Ранние скриншоты показывают полностью голубую плиточную сетку, но этот проект никогда не выпускался в публичной сборке приложения.

В октябре 2011 года Facebook 4.0 был одним из первых приложений, использовавших для навигации «гамбургер-меню». Популярность приложения ускорила принятие спорного элемента дизайна бесчисленным количеством приложений и веб-сайтов в последующие годы. После версии 4 временная шкала разработки Facebook значительно усложнилась. Итерации по изменению внешнего вида приложения начали проводить быстрее, и эти изменения часто внедрялись постепенно, а не удерживались для крупных релизов.
В апреле 2013 года Facebook экспериментировал с «Chat Heads» в приложении iOS, перемещаемыми фото профиля, которые расширялись в окнах чатов при нажатии. Новый вид iOS 7 потребовал редизайна, с повторным введением панели вкладок для навигации. Иконки на панели вкладок по-прежнему регулярно переделываются и перемещаются в обновлениях.
Некоторые из задач дизайна Facebook исходят из их операционного масштаба. В отличие от многих небольших приложений, Facebook должен предлагать постоянный опыт своим клиентам на большом количестве платформ, а не только для Apple. Обновление, вышедшее в августе 2017 года, попыталось унифицировать дизайн ленты новостей в iOS, Android и веб версиях в виде комментариев, похожих на разговор в Messenger.
Редизайн многофункционального пространства для Avito: что у нас получилось
При входе мы установили большое зеркало в полный рост, на которое нанесли приветственную игривую надпись: «Привет, парень». Чтобы с порога задать нужную атмосферу в пространстве.
Далее попадаем в основную зону — гибкое многофункциональное пространство. Это кухня-столовая, лаунж-зона, где сотрудники могут отдохнуть в течение рабочего дня, а также площадка для проведения мероприятий и неформальных встреч.
Мебель подобрали разноформатную. В обеденной зоне поставили столы и стулья, в местах для неформальных встреч, а также в игровой зоне — мягкие кресла и диваны.
В игровой установили телевизор, а за ним — металлическую панель. Объемный рисунок панели перекликается с фронтальной панелью барной стойки.

В зоне бара мы расположили самый яркий элемент в интерьере — мотоцикл. Он уже был в офисе, но раньше стоял на полу возле стены. Мы решили, что он будет эффектнее смотреться под потолком и освободит полезную площадь. Тем более мотоцикл отлично вписывался в дизайн-концепцию.

Чуть дальше от обеденной зоны вдоль окон поставили несколько столиков. За ними можно пообщаться с коллегой, пообедать или поработать.

Рядом расположили трансформируемую переговорную. При необходимости можно зашторить и провести встречу, сотрудники могут там отдохнуть.

Обновили дизайн в кухне. Необходимую технику спрятали или стилизовали в соответствии с концепцией. Также установили вендинговый аппарат, где в любое время сотрудники могут взять газировку или перекус.
Весь интерьер выполнили в нейтральных тонах. В качестве основных использовали белый, серый и черный. Дополнили металлическими конструкциями, рифленым стеклом. Акцентными выступили оттенки синего — на стенах, кухонных фасадах, текстиле.
Чтобы выдержать стиль 60–70-х годов, добавили яркую навигацию и графику.
Стену в обеденной зоне украшает каллиграффити с надписью «Здесь решают люди». Эта фраза отражает ценности компании. В кухне — изображение мотоцикла. Также граффити есть на холодильниках, в санузлах и на некоторых креслах.

Дополнительно декорировали стены во всём пространстве неоновыми светильниками и вывесками. Например, такие есть в баре, во входной зоне и в санузлах.

Для хорошей акустики под потолком разместили акустические панели. А в качестве напольного покрытия выбрали виниловую LVT-плитку.
Первый этап: разработка дизайна с нуля
Для меня как дизайнера Брендспейс появился внезапно. До этого проектом несколько месяцев занималась команда разработки. Ко мне обратились, когда сроки на подготовку дизайна уже горели. На то, чтобы сделать первый вариант, было всего две недели. За это время я создал десяток универсальных модулей, которые хорошо подходили под любой вид контента: фото, текст, видео.
Самым сложным было предусмотреть разные варианты наполнения для модулей. Чтобы понять, что бренды хотят показывать пользователям, я изучил лендинги конкурентов и страницы потенциальных бизнес-клиентов. Например, посмотрел рекламные страницы брендов на разных маркетплейсах, лендинги автодилеров.
К концу второй недели подготовил первый вариант дизайна. В него вошли 9 модулей:
-
главный баннер;
-
категории товаров;
-
блок изображений;
-
блок с видео;
-
модуль для акций с изображением и текстом;
-
сравнение товаров;
-
товарные описания;
-
новостной или статейный блок;
-
простой блок с текстом.
В части модулей оставили для клиентов возможность немного менять контент. Например, поменять местами текст и картинку, не прописывать заголовки и описания видеороликов. Это было нужно для того, чтобы представители бренда могли сами решать, как будет выглядеть их страница.
Чтобы никого не рекламировать, в примерах модулей в статье будут животные.
Модуль с категориями «товаров».
Конечно, называть так животных некорректно, но котята здесь только для примера
А так в первой итерации выглядел модуль «Текст с картинкой»
Блок с видео
Блок для сравнения «товаров». Пёсик здесь тоже только для примера
Брендспейс получился визуально непохожим на Авито. Например, я изменил размер шрифта и принципы отступов. Экспериментировать стало возможно потому, что на тот момент дизайн Авито устарел.
Кроме дизайна для десктопа и мобильной версии сайта была готова спецификация и шаблоны компоновок лендингов. На этом этапе дизайн ушёл в разработку, а я вернулся к работе над другими проектами.
Пример того, как выглядит спецификация: в ней указаны технические требования
к изображениям и оптимальная длина текстаЕсли вы читаете статью с компьютера, можно кликнуть на картинку, чтобы посмотреть поближе
Небольшое пространство с заявкой на многофункциональность
Avito обратились к нам за редизайном одной из зон офиса. Помещение расположено в бизнес-центре А-класса. Когда мы попали внутрь, оказались на небольшой площади — 131,5 м².
Первое, что мы отметили, — панорамное остекление. Из окон открывается прекрасный вид на парк, набережную Невы и Большеохтинский мост
Кроме того, окна в пол пропускают много естественного света, что важно для места, где сотрудники будут восстанавливать силы между рабочими задачами

Так выглядело пространство до редизайна

В другой зоне располагалась кухня со всей необходимой бытовой техникой
Основное пожелание Avito — обновить дизайн интерьера. Создать удобное и многофункциональное пространство, в котором можно будет приятно провести время во время обеденного перерыва или неформальное корпоративное мероприятие.
А именно: нам нужно было продумать свежие идеи для современного офиса и грамотно оформить пространство. 3 основных сценария использования:
- обеденная зона для сотрудников;
- конференция или неформальные собрания;
- открытое пространство для проведения массовых (на 30-50 сотрудников) мероприятий.
При проектировании офиса важно было отталкиваться от концепции Avito — подчеркнуть в интерьере современный дух и ценности компании. Но не привязываться к существующему брендбуку и фирменным цветам
Также нужно было следовать требованиям бизнес-центра:
- сохранить существующие опуски с фасадным освещением по периметру витражного остекления;
- обеспечить беспрепятственный доступ к существующим шахтам;
- учесть, что по периметру фасадного остекления присутствуют конвекторы;
- предусмотреть размещение бойлера, так как в помещении нет горячего водоснабжения.
Когда мы собрали все вводные и пожелания, приступили к разработке концепции.
Отказ от фирменных цветов в пользу ярких акцентов из 60-х и 70-х годов
Как и всегда перед началом работы над проектированием офисов, мы составляем подробное техническое задание. Так мы вместе с заказчиками фиксируем идеи и пожелания, чтобы конечный результат не становился сюрпризом, а был предсказуемым и понятным.
Avito хотели передать дух современной компании, которая стремится к инновационным решениям и не боится рисковать.
За основу брали пожелания Avito и дополнительно ориентировались на существующие элементы в интерьере. Например, компания хотела видеть в новом интерьере отсылки к 60–70-м годам, и мы подобрали яркие цвета, поп-артовые рисунки, неоновые надписи, мебель и декор непривычных форм.
Таким образом мы собрали два коллажа.


Поскольку Avito хотели отойти от уже привычных глазу фирменных цветов, мы подобрали альтернативные варианты.
Как база, черный и белый цвета, акцентами вписать в интерьер глубокие оттенки синего: ультрамариновый, горечавковый, кобальтово-синий, перламутровый ночной. Дополнительно планировали поиграть на контрастах за счет разных материалов отделки — металла, стекла, пленки.
OmniFocus

С самого начала App Store был полон приложений для управления задачами. И Thing, и OmniFocus от Omni Group, были доступны с первого дня работы магазина. Хотя оба приложения обеспечивают аналогичную полезность, каждое из них выбрало уникальные направления дизайна.
OmniFocus для iPhone изначально использовал простые табличные представления с собственной иконографией для навигации. Он получил премию Apple Design Award в 2008 году. Omni Group переделала оформление приложения и его иконку в июне 2010 под Retina-дисплей iPhone 4. Одно из самых больших изменений приложения состоялось в июне 2011 года, когда был добавлен режим «Forecast». Глянцевый выборщик дат под навигационной панелью стал определяющим элементом пользовательского интерфейса, даже когда глянцевый дизайн исчез в 2013 году при редизайне iOS 7. Новый плоский вид в значительной степени основывался на цветах оттенков текста для ощущения пространства.

Весеннее обновление 2015 года для iPhone принесло темную иконку приложения с более мягкими краями на галочке. Каждая иконка с 2012 года содержит пасхальное яйцо, о котором могут не знать даже давние пользователи приложения. Увеличьте масштаб, и вы заметите, что текстура из углеродного волокна на самом деле состоит из крошечных, повторяющихся логотипов Omni.
Последнее важное обновление для OmniFocus вышло в мае прошлого года с версией OmniFocus 3.0. В то время, как многие из изменений были связаны с инженерией, большие заголовки и оптимизация iPhone X освежили интерфейс
Вакансия Бэкенд-разработчик в команду биллинга компании Авито на vc.ru, Удалённо
Удалённо
Зарплата по договорённости
96
просмотров
Требования
- Имеете опыт коммерческой разработки на Go.
- Умеете писать поддерживаемый и тестируемый код.
- Уверенно владеете SQL, работали с реляционными БД (у нас PostgreSQL), умеете оптимизировать запросы.
- Можете самостоятельно обсудить решение с другими командами, если того требует задача.
Задачи
- Реализовать внутреннюю логику биллига для корректного учета денежных средств пользователей в одной из платных услуг «Авито».
- Найти потенциальные места улучшения и масштабирования наших систем.
- Участвовать в разработке продукта, которым пользуются миллионы человек.
- Проектировать и реализовывать решения для одной из крупнейших вертикалей «Авито».
- Сопровождать полный цикл жизни продукта от проработки продуктового решения до деплоя кода на серверы.
- Участвовать в распространении лучших практик путем участия во внутренних сообществах и оказания консультаций.
- Работать в кросс-функциональной команде по методологии Scrum.
- Участвовать в Code Review.
- Можете декомпозировать бизнес требования в функциональные и нефункциональные требования.
- Знакомы с теорией нагрузочного тестирования.
- Можете выступить в роли фича-лида.
- Можете взять на себя роль наставника, вам интересно выступать на публике с докладом о технических задачах.
- Хотите участвовать в распространении лучших практик путем участия во внутренних сообществах и оказания консультаций.
- Готовы работать с большим массивом финансовых данных.
Условия
- Возможность реализовать свои идеи в проекте с многомиллионной аудиторией.
- Талантливая команда, готовая поддержать ваши инициативы.
- Мощное железо, дополнительные мониторы и всё, что нужно для продуктивной работы.
- Прозрачная система премий, достойная зарплата — размер обсудим на собеседовании.
- Личный бюджет на обучение, который можно тратить на книги, курсы и конференции.
Забота о здоровье: с первого дня у вас будет ДМС со стоматологией, в офисе принимают терапевт и массажист.
Компенсируем расходы на питание, чтобы сотрудники меньше скучали по бесплатным обедам в офисе.
Удалённая работа или замечательный офис в двух минутах от метро «Белорусская»: панорамный вид на центр города, места для уединённой работы и зоны отдыха.
Дополнительно
Наша команда создаёт финансовые продукты. Среди них автокредитный и ипотечный калькуляторы, а также другие инструменты, которые делают сделки на «Авито» проще и доступнее.
Мы ищем сильного backend-инженера в команду биллинга. Нам важен хороший опыт в PHP и Golang, а также желание развиваться.![]()
Команда занимается разработкой сервисов финансового учета, являющихся основой всего биллинга «Авито».
{
«author_name»: «Artem Korotkov»,
«author_type»: «self»,
«tags»: [],
«comments»: 0,
«likes»: 0,
«favorites»: 0,
«is_advertisement»: false,
«subsite_label»: «vacancies»,
«id»: «647522»,
«is_wide»: true
}
«Авито» обновил дизайн к своему 15-летию
«Смена имиджа» проводится в честь грядущего пятнадцатилетия сервиса. Команда популярного сервиса частных объявлений «Авито» объявила о запуске нового визуального стиля.

А также «отражает характер- безграничный выбор, взаимную выгоду и уверенность». Как отмечают разработчики, теперь «Авито» выглядит «технологичнее, ярче и современнее».
До 2014 года логотип «Авито» выглядел совсем иначе. Предыдущее масштабное обновление визуального стиля было в 2014 году. В преображении фирменного стиля участвовало бренд-бюро Shuka. Потом появились фирменные круги, а теперь они были доработаны и преобразованы — преобразились лого, палитра, фирменная графика и типографика.
«Смена имиджа» проводится в честь грядущего пятнадцатилетия сервиса. Команда популярного сервиса частных объявлений «Авито» объявила о запуске нового визуального стиля.
А также «отражает характер- безграничный выбор, взаимную выгоду и уверенность». Как отмечают разработчики, теперь «Авито» выглядит «технологичнее, ярче и современнее».
До 2014 года логотип «Авито» выглядел совсем иначе. Предыдущее масштабное обновление визуального стиля было в 2014 году. В преображении фирменного стиля участвовало бренд-бюро Shuka. Потом появились фирменные круги, а теперь они были доработаны и преобразованы — преобразились лого, палитра, фирменная графика и типографика.
За это время наш сервис прошел большой путь — от доски объявлений до уникальной платформы для коммерции, объединяющей в себе пять бизнес-вертикалей. В этом году Авито исполняется 15 лет. С каждый днем Авито развивается, становится технологичнее, удобнее и безопаснее. Сейчас Авито — это ресурс, который помогает десяткам миллионов людей в месяц решать свои повседневные задачи, а также комфортная среда для развития сотен тысяч малых и средних бизнесов в России. Наш визуальный язык должен идти в ногу со временем, быть ярким и заметным на высококонкурентном рынке.
Ещё новости
27.08.2022 Вот так импортозамещение: многие программы из российского RuStore не запускаются на смартфонах без сервисов Google
Это касается, в частности, смартфонов производства Huawei. Ряд приложений из российского магазина RuStore не работают или делают это некорректно на смартфонах без системных сервисов Google. Как сообщает…
27.08.2022 Проект Debian начал общее голосование по вопросу поставки проприетарных прошивок
До 2 сентября продлится фаза обсуждения выставленных на голосование пунктов, после чего начнётся сбор голосов. Проект Debian объявил о проведении общего голосования (GR, general resolution) разработчиков…
27.08.2022 Apple решила делать смартфоны и другую технику из «отходов», не используя ресурсы Земли
В частности Apple планирует использовать экологически чистые и переработанные материалы. Кук также сказал, что сама Apple достигла углеродной нейтральности, а к 2030 году надеется добиться углеродной нейтральности…
27.08.2022 Xiaomi отказалась работать с DxOMark. Лабораторию обвиняют в продаже оценок, глава компании ответил на критику
Впоследствии в DxOMark заявили о покупке Xiaomi 12S Ultra для тестирования. Не так давно Лэй Цзюнь сообщил, что Xiaomi 12S Ultra не будет отправлен на тестирование в лабораторию DxOMark, что вызвало бурные…
27.08.2022 Nintendo тоже обещает не поднимать цены на консоли Switch
Несмотря на то, что финальную цену определяют сами магазины, у Nintendo нет планов повышать цены на своё оборудование», — отметили в компании. »Хоть мы и не можем комментировать стратегию образования цен,…
Все новости
PCalc

История PCalc началась более, чем за десять лет до запуска App Store. Разработчик Джеймс Томсон выпустил оригинальное приложение для Mac в 1992 году, и его эволюция продолжается и сегодня. С самого начала на iOS PCalc предложил полностью настраиваемый интерфейс, предлагая постоянно расширяющийся набор тем и вариантов настройки. Cлишком много, чтобы рассматривать их здесь, поэтому я выбрал несколько основных моментов.
Первая версия PCalc для iPhone была портирована из виджета панели управления Mac, но в сочетании с классическим интерфейсом iPhone выглядела хорошо. Глянцевые кнопки и темно синяя LCD-панель соответствовали иконке приложения. В декабре 2008 года популярная тема под названием «Сумерки» была добавлена с еще более детальной графикой и цветовой схемой, аналогичной iOS-калькулятору. Затем тема «Сумерки» была обновлена и поддержкой Retina-графики больших дисплеев.

PCalc адаптировался к плоскому дизайну iOS 7 с новой темой по умолчанию под названием «Самурай» и соответствующей иконкой. Старые темы остались доступными в настройках приложения. Иконка PCalc снова была обновлена в марте 2016 года. С момента релиза iOS 10.3, Apple разрешила сторонним приложениям динамически изменять иконки приложений, без внесения на рассмотрение новой версии в магазин. В мае 2017 года PCalc начал в полной мере использовать эту функцию, выпустив огромное количество альтернативных иконок на выбор. В последующих обновлениях было добавлено еще больше.
После 10 лет разработки, PCalc вышел за пределы калькулятора для iPhone. Недавние обновления обладали некоторой творческой свободой с функциями новизны, такими как режим AR калькулятора. Поддержка дисплея iPhone X принесла теме «Самурай» закругленные углы.
Секрет популярности Material Design
На презентации стало ясно, что в веб-дизайне был совершен настоящий переворот. О новом замысле от Google очень быстро заговорили в профессиональном сообществе. Некоторые проекты хотели поменять оформление, чтобы следовать за трендами. Другие поняли преимущества осмысленного интерфейса. IT-корпорация сделала огромный шаг вперед.

Секрет популярности Material Design
Не найдется сейчас такого человека, который бы не подтвердил, что с любым приложением Google на смартфоне удобно взаимодействовать. Складывается впечатление, что на экране настоящие объекты, которые выполняют чёткую цель, но при этом являются самодостаточными.
Google, в первую очередь, подумала о запросах своей целевой аудитории. И не прогадала. Она создала единый стиль для своих продуктов. Она подробно описала концепцию и создала тематический сайт с инструкциями, статьями и примерами. Эта работа достойна уважения.
Готовы создать уникальные пространства, которые олицетворяют стиль и функциональность? Знакомство с дизайном интерьеров начинается с нашего курса. Изучите принципы проектирования и оформления помещений, научитесь работать с профессиональными инструментами: ArchiCAD, 3D Maxs, Photoshop, InDesign. Станьте дизайнером интерьеров, о котором мечтают клиенты.
Заключение
Результат работы впечатлил компанию. Проект вошел в ТОП-3 номинации «Дизайн-идея» — это ежегодная национальная премия за лучшие решения бизнес-пространств. И вот как в Avito прокомментировали наше сотрудничество:

Нам удалось точь-в-точь перенести пожелания и намеченную концепцию в интерьер пространства. Это удалось, в том числе, благодаря авторскому надзору.
На протяжении работы мы следили, чтобы подрядчики придерживались документации. А если что-то не получалось, оперативно консультировали строителей и уже на месте подбирали оптимальные решения.
Например, в процессе реализации концепции возник вопрос по размерам кабинки в санузле. Чтобы им было комфортно пользоваться, пришлось изменить ширину кабинки. Такое реально отследить только в момент ремонта.
Несмотря на то что нам удалось придумать решение, которое не нарушит задумку, каждый такой шаг мы согласовывали с клиентом. Чтобы он понимал, на каком этапе мы находимся и мог в режиме реального времени отслеживать прогресс.
В итоге благодаря командной работе ожидание совпало с реальностью. Мы закончили проект, и им уже активно пользуются сотрудники.






























